APARTMENT / CASTELVECCHIO 11
YEAR / 2018
CLIENT / WREOCO s.r.l.
TIPOLOGY / Residential
LOCATION / Verona city center / VR / Italy
SIZE / 130 sqm
WORKSTAGE / Definitive and Executive design
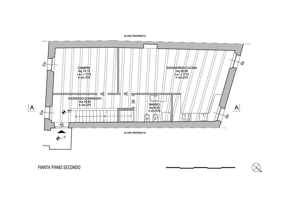
Refurbishment project of a residential unit in a very evocative context.
The flat is placed at the second floor of a building facing Castelvecchio, one of Verona's most important Medieval age monument.
The flat is articulated on two levels, but the attic is not accessible. It needs important interventions on the structures, in particular the slab and the roof, and on the finishing.
The challenge is to confer a new life to this unit, adapting it to the new requirements and the local regulations, but respecting at the same time the very delicate context and the environmentally protective restrictions.











